True

PROYECTO BBVA  (Mantenimiento)

Realizamos el mantenimiento integral de 38 davits en las instalaciones del BBVA, garantizando su óptimo funcionamiento y prolongando su vida útil. El servicio incluyó pintura anticorrosiva, engrase especializado y la verificación completa de sus sistemas de izaje y rotación.

Además, ejecutamos la instalación y mantenimiento de anclajes tipo Yoke, tipo D y Pedestal, diseñados para asegurar líneas de vida y puntos de anclaje certificados para trabajos en altura. Cada componente fue inspeccionado y certificado de acuerdo a los estándares de seguridad exigidos por el cliente y la normativa vigente. (25/10/2025)

 

 

 

 

 

 

 

 

 

 

 

 

PROYECTO UTP NORTE (Escuadras metálicas)

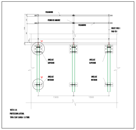
En el proyecto UTP Norte, realizamos la instalación integral de 25 escuadras metálicas destinadas a diferentes áreas operativas dentro de la obra. Se implementaron escuadras de 2.5 toneladas para la zona de acopio de materiales y banco de acero, garantizando soporte estructural seguro para cargas pesadas.

Asimismo, se instalaron escuadras de 1.5 toneladas especialmente diseñadas para la habilitación de comedores y vestuarios, asegurando infraestructura estable y adecuada para el uso diario del personal.

Cada escuadra fue equipada con sus respectivas barandas de protección, cumpliendo con los estándares de seguridad industrial y asegurando condiciones seguras para todos los trabajadores durante las operaciones en altura y en zonas de tránsito. (5/11/2025)

 

 

 

 

 

 

 

 

 

 

 

 

PROYECTO INTI PUNKU  (Andamios colgantes)

Para el Consorcio INTI PUNKU, se realizó el alquiler de 10 andamios colgantes eléctricos, en longitudes de 2 a 8 metros, adaptándose a las exigencias de cada frente de trabajo y a las distintas alturas y posiciones requeridas en el proyecto.

Estos equipos fueron utilizados para los trabajos de tarrajeo y pintura y otros servicios  para el  Hotel Costa del Sol – Aeropuerto , además de otras labores que demandaban un acceso seguro y eficiente en zonas elevadas. (2/01/2025)

Clarico-Offer style 4
Fachada Costa del sol (lateral)
Clarico-Offer style 4
Fachada Costa del sol (frontal)
Clarico-Offer style 4
Vista desde arriba

PROYECTO VANDERGHEN  (Escuadras metálicas)

Alquiler de escuadras 1.5 TN con barandas de seguridad

En el proyecto Vanderghen (San Isidro) brindamos una solución integral para la habilitación y acondicionamiento de oficinas, almacenes y áreas de duchas, mediante el alquiler de escuadras metálicas de 1.5 toneladas equipadas con barandas de protección.

Nuestro servicio permitió optimizar los tiempos de montaje y asegurar un entorno de trabajo seguro y ordenado, especialmente en zonas de tránsito interno y almacenamiento temporal.

Servicios implementados:

  • Alquiler de escuadras metálicas de 1.5 TN

  • Instalación de barandas perimetrales de protección

  • Soporte técnico y supervisión en obra

  • Soluciones adaptadas al uso en oficinas, almacenes y módulos de ducha

 

 

 

 

Contáctanos

¿Listo para llevar tus ideas a la realidad? Contáctanos y descubre cómo transformamos tus proyectos en innovadoras soluciones constructivas.

Clarico-Offer Timer

To install this Web App in your iPhone/iPad press and then Add to Home Screen.